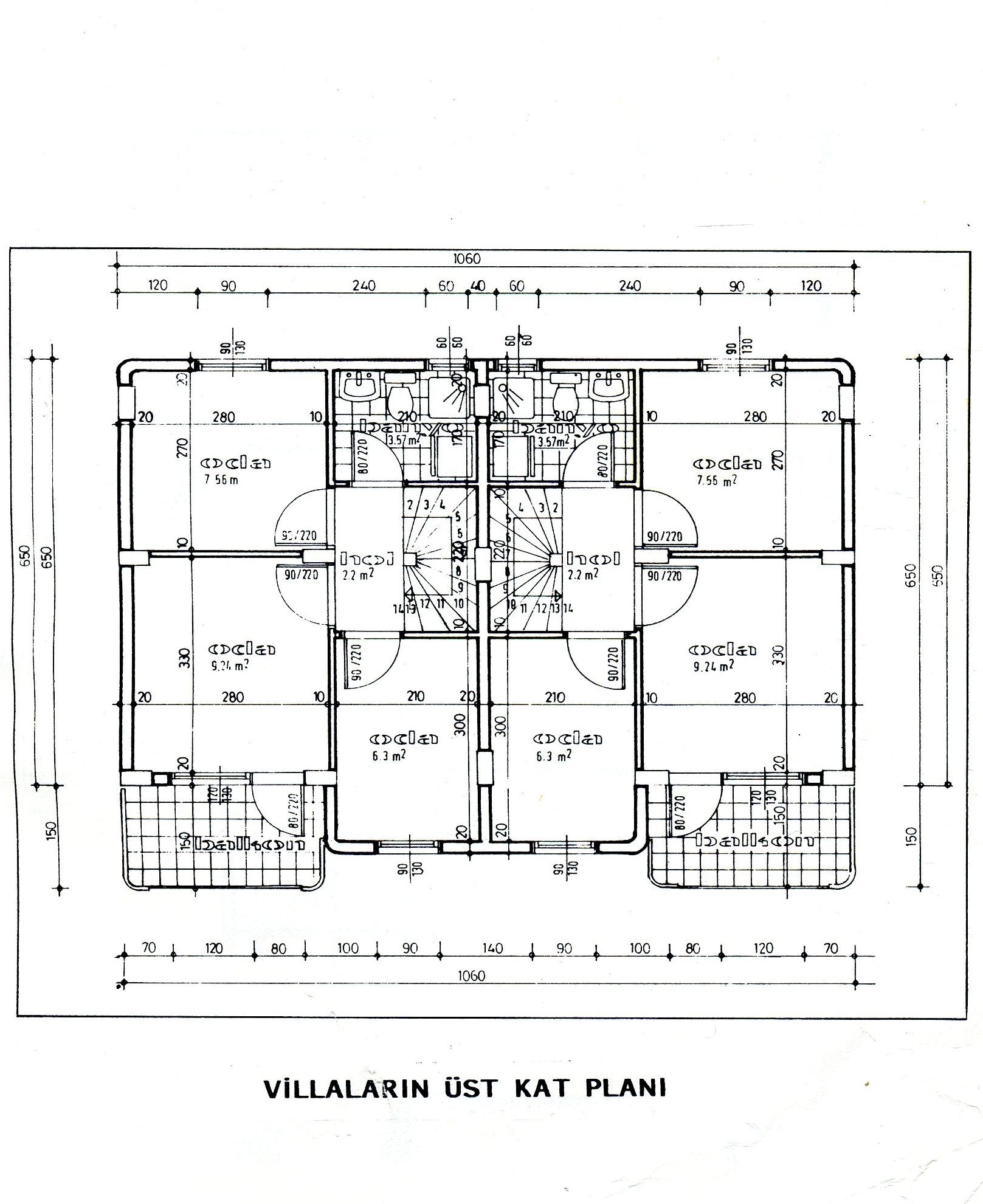
KUMKENT KOOPERATİFİNDE BULUNAN VİLLALARIN ÖN,ARKA CEPHE PLANLARI, ÜST , ZEMİN KAT PLANLARI VE KESİTLER GÖRÜLMEKTEDİR.

 

 

Online Site Yönetimi

Tahakkuklarınızı,Ödemelerinizi ve Güncel Borç Bakiyenizi, Ekstre Dökümlerinizi Kullanıcı Adınız ve Şifreniz İle İnceleyebilirsiniz.

 

Site Yönetimimiz Nerede ?

Adres: Akbük Mahallesi 1001. Cadde No:178/C AKBÜK/DİDİM-AYDIN||Tel:0(256)8462037||Mail: kum.site@mynet.com